Sinne pitää tuoda sähköt myös ilmastoinnin ällirasialle, jotta se osaa toimia kuten sen pitää... Olikos kyse Y3 vai Y4 mallisesta..? Tässä kuiteski tulee Y3 malliseen kuvia, uudempaankin ne on "jossainpäin" kämppää..:

Tuollai ne osat on sijoiteltuna ympäri autoa...

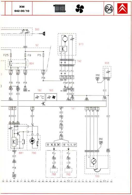
Sit sähkökuvan vasen puolisko ensin...

...ja tärkeämpi, oikea puolisko... Tästä sitten selviää että releelle n. 804 pitää tuoda sähköä, ja kyllä se sulakkeen 23 takaakin näköjään sähköjä haluaisi... Rele löytyy sulaketaulusta, tietenkin, ja sen kuvat on sitten taas jossain jemmassa...
Voi ne sähköt tietenki syöttää suoraan sille säätöpaneelillekin (joka siis on se "ällirasia") ja puhaltimelle, mutta se pitää sitten tehdä siten että syötetään sähköt vaihtoreleen kautta jotta sähköt sitten tulee "normaalissa tilanteessa" alkuperäisellä tavalla...
Olikohan näistä nyt sitten mitään apuja..?